Tegnet logo til Røver Huset

Røverhuset

er et nokså merkelig hus, i en nokså merkelig by.

Ferdigstilt 2025.

Byhus og infill prosjekt på Kampen i Oslo.

Teglsteinsfasade med ornamentikk og gult vindu.

Dagslys i bakgården

Midt i det tettbygde nabolaget på Kampen (hvor Thorbjørn Egner vokste opp og fant inspirasjonen til Kardemomme by) ligger det moderne byhus med røtter i både sted og fortelling. Den lille inneklemte tomten har gjort lysinnslipp og privatliv til viktige temaer i utformingen.

Innvendig åpner huset seg i høyden, og en ståltrapp med integrert bokhylle og peis filtrerer lyset fra takterrassen ned gjennom etasjene. Olav og Kaja bor her med både firbente og småbente. Han er forfatter og arkitekt med behov for mye bokplass, hun industridesigner som har tegnet flere av husets møbler.

En liten bakgård med et lite tre på Kampen i Oslo med fasaden av tegl til Røverhuset på venstre side.
trevegger og gangbru i et innvendig atrium

Vertikal planløsning

En lang kjøkkenbenk binder førsteetasjen sammen og skaper en motsats til det vertikale vinduet i atriet som henter in dagslys fra høyden. I 2.etasje er soverommene på hver side av atriet og forbundet med en bro, og på toppen er skrivestuen og arbeidsrommet som åpner seg på begge sider med både balkong og takterrasse. 

Steinkjøkkenbenk med høyt vindu og innvendig atrium av massivtre.
Mann lager kaffi på kjøkkenet med mørke valnøtt fronter og høyt vindu bak.
Innvendig trapp av tre og pulverlakkert stålspiler. Spisestue med pendellamper og innebyggetpeis i forkant.

Gjenbruk og inspirasjon

Huset er oppført i massivtre og gjenbrukt tegl, murt med kalkmørtel og dype fuger som gir liv og skygge i fasaden. Hver murstein får dermed skinne som et eget lite kunstverk. Her er det synlige spor etter både håndproduksjon og historie. Teglen speiler i tillegg Kampen kirke og flere av de andre gårdene i området. Selve fasadeuttrykket er inspirert av fortellingen i Kardemomme by. Dette er en fri tolkning med respekt for stedets egenart og historie.

Detaljene er mange, og resultatet vakkert … og nokså merkelig.

Røverhuset med takterrasse, tegl fasader og gule vinduer vist med bakgården på Kampen i Oslo.
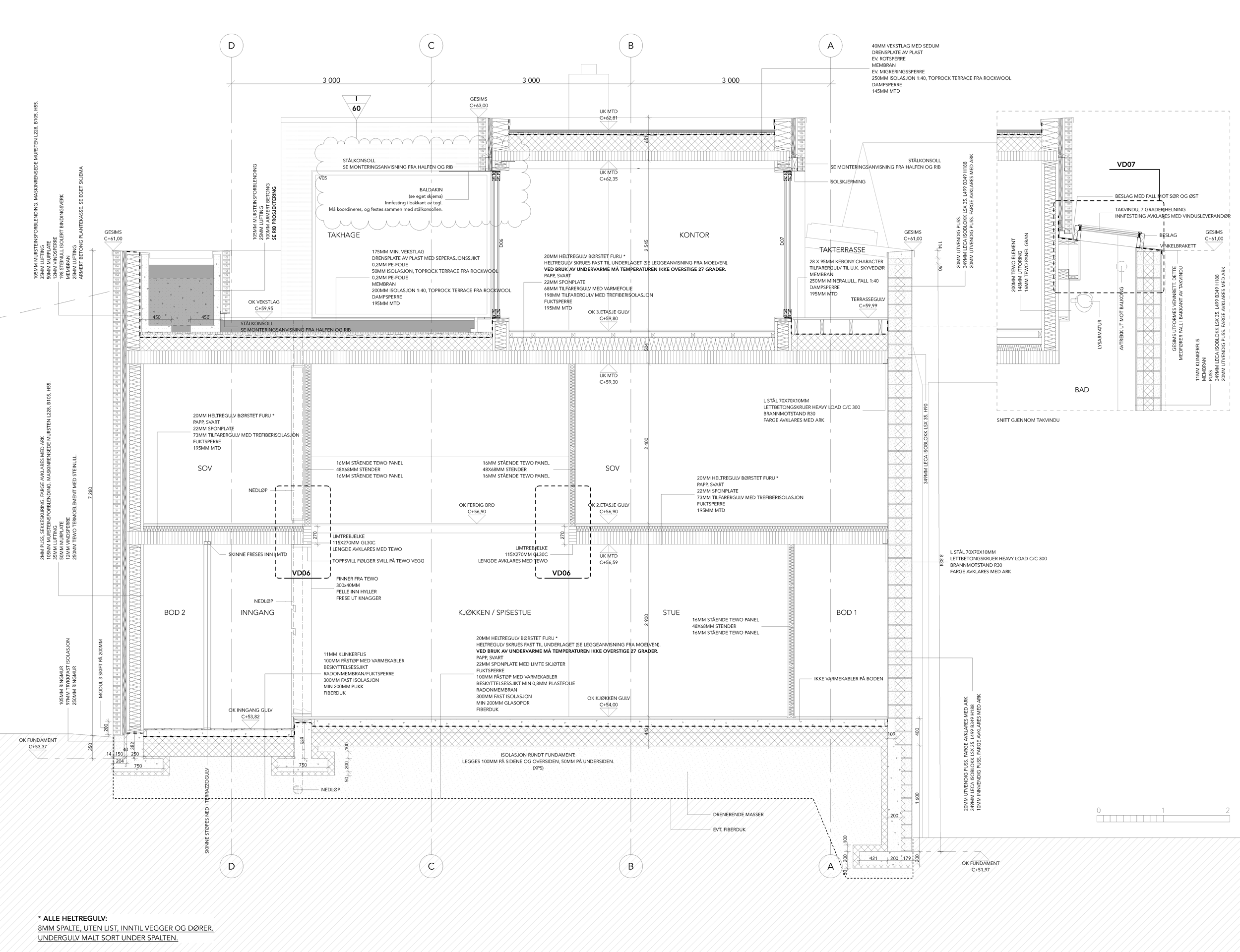
Arbeidstegning av lengdesnitt med takhage, tegl og massivtre.
Murveggen til Røverhuset vises bak eksisterende nabovegger.
Inngang til Røverhuset med luftespalter eller lysåpninger i murveggene.
Takterrasse eller takhage med plantekasse i en bakgård på Kampen i Oslo.
En hund står på tretrappen og ser gjennom stålspilene ned på bokhyllene.
Next
Next

På berget