Tegnet logo til prosjektet Gamlehuset

Gamlehuset

gir nytt liv til et gammelt fiskerbondehus.

Ferdigstilt 2014.

Renovert verneverdig tømmerhus.

Gamlehuset med glasstilbygget som en kontrast til den klassiske husformen. Kveld med tåke i skogen utenfor.

Bevaring

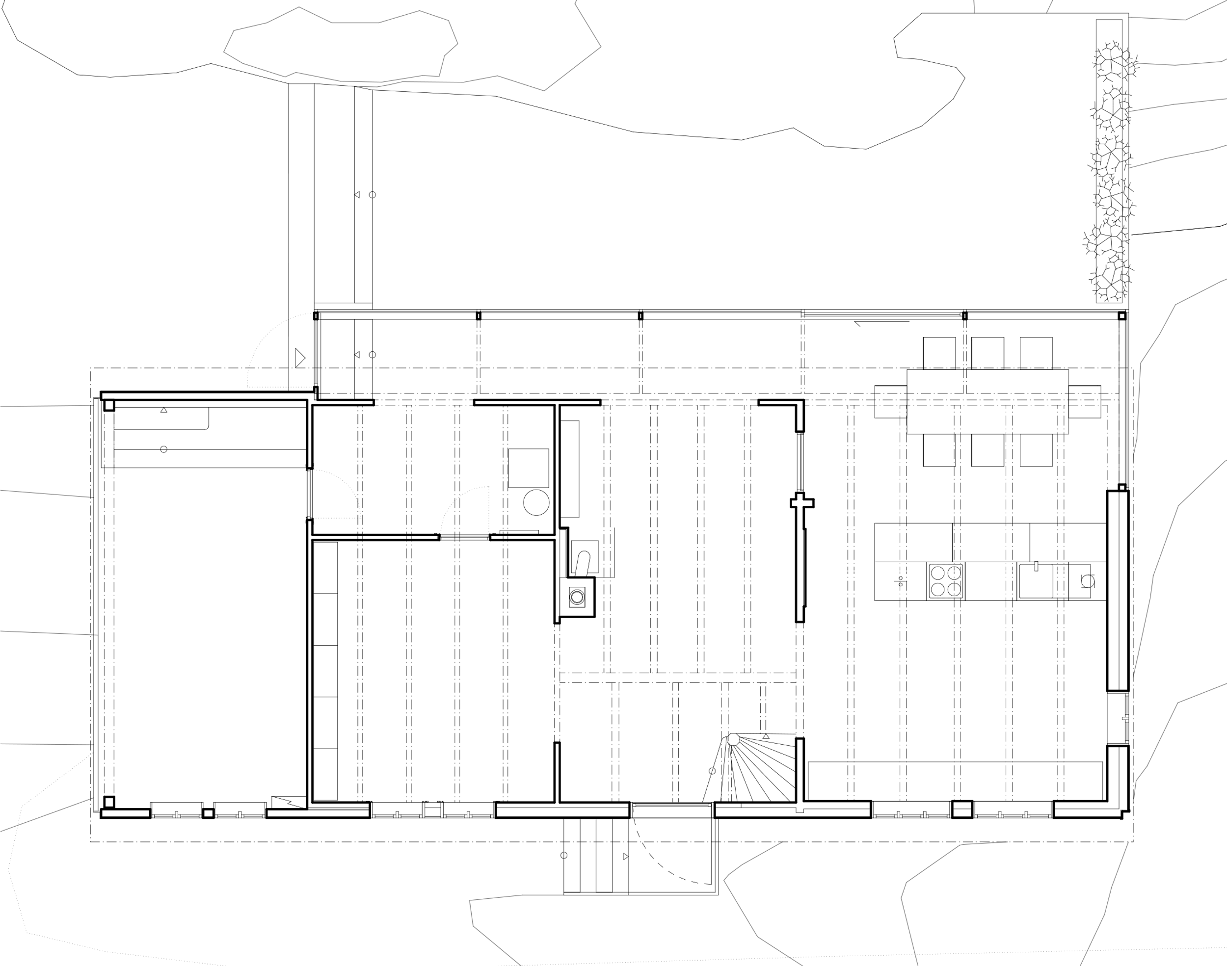
Gamlehuset er bygget og videreutviklet gjennom flere generasjoner. Den eldste delen har laft fra slutten av 1700-tallet, og sporene etter levd liv setter sitt preg på alle husets flater. Historien ligger bokstavelig talt i veggene, samt i tak, gulv og konstruksjoner.

Gammelt håndfarget foto av Setervika med hus, løe, stabbur, og hønsehus.
Gamlehuset med empiriske vindu sett fra attlege.

Tilbygg

En sentral utfordring var å løse både plassbehov og sirkulasjon uten å gjøre nye inngrep i de gamle veggene. Løsningen ble et nytt glassbygg på baksiden av huset, som fungerer både som forbindelsesledd mellom rommene og som utvidelse av kjøkkenet med plass til spisestue. Tilbygget står i tydelig kontrast til det eksisterende huset, men tilfører samtidig dagslys til en ellers mørk tømmerkonstruksjon. Slik fremheves og bevares detaljer som tidligere var skjult.

Tilbygg med glasstak og glassvegger med masse dagslys.
Tilbygg av glass som skaper en glassgang med betonggulv på siden av et gammelt tømmerhus. Kontrast mellom gammelt og nytt.
Gamlehuset med glasstilbygget som dekker hele fasaden.

Renovering

Huset er totalrenovert med stor respekt for byggets historie og de flotte håndverkstradisjonene. De gamle empiriske vinduene, som ved første øyekast så fortapte ut, viste seg å kun trenge litt omtanke, og fremstår i dag som noen av husets vakreste detaljer. Tømmerveggene er igjen synlige, og nyere lettvegger er fjernet for å åpne opp rommene. Den opprinnelige trappen er tilbakeført til sin rette plass ved hjelp av en lignende trapp fra et revet hus.

Et stort glassfelt som er tegnet på av barn forran en gammel tømmervegg med klassisk maleri.
Plantegning av Gamlehuset.

Terrasse

Den nye terrassen strekker seg fra glassgangen og ut mot berget, som danner en naturlig avslutning. Terrassen ligger på samme nivå som det oppvarmede betonggulvet inne, og når skyvedøren åpnes flyter ute- og innerom sømløst sammen. Dette gir fleksible bruksområder for både lek og servering. Selv med døren lukket oppleves det som å sitte ute i naturen ved spisebordet.

Sommer i Gamlehuset med åpent glassdør skyvefelt som kobler ute terrassen sammen med spisestuen inne. Lek og moro.
Møte mellom moderne arkitektur og naturen i form av berg og mose.
Previous
Previous

På berget

Next
Next

Birting